Privato/Smart living ad elevata sostenibilità
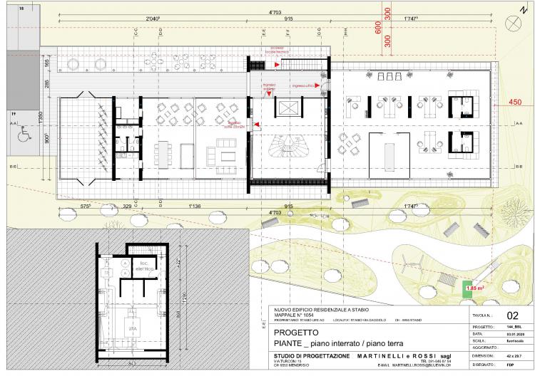
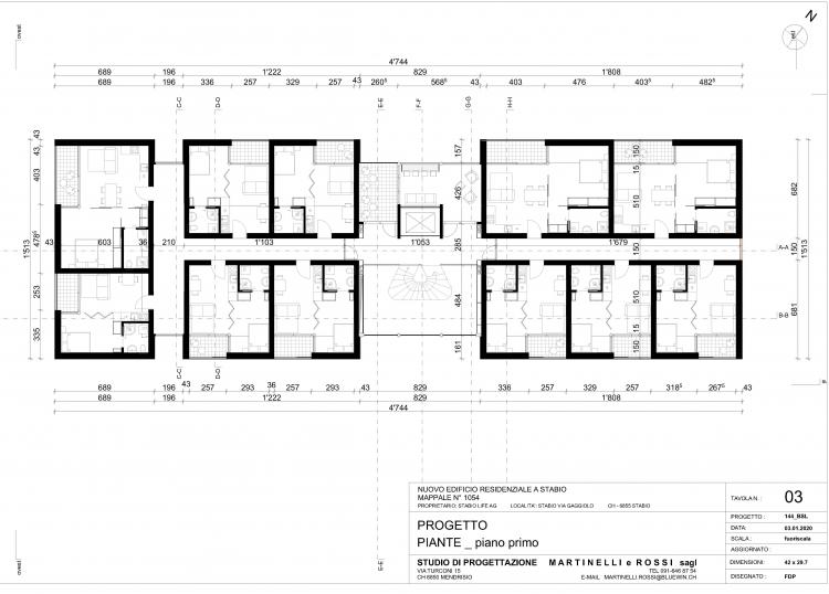
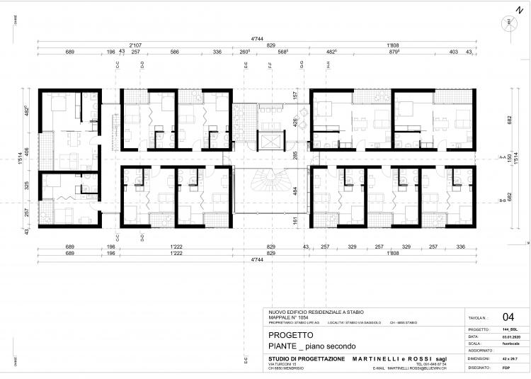
La società Stabio Life affida allo Studio Martinelli e Rossi il mandato per costruire una palazzina di una ventina di appartamenti e uffici che rispettano i dettami dell' SNBS, ovvero lo standard svizzero completo per la certificazione di edifici sostenibili. Smart living, design di lusso e sostenibilità certificata SNBS, una prima assoluta ticinese. Con lo standard della costruzione sostenibile svizzera (SNBS), i committenti si impegnano volontariamente a raggiungere obiettivi di qualità nei settori della società, dell'economia e dell'ambiente. E’ un impegno che lo Studio Martinelli & Rossi appoggia e sostiene per una costruzione sostenibile in Svizzera.
Committente
Stabio Life SA
Stabio Life SA
Oggetto
Progetto esecutivo in corso
Progetto esecutivo in corso
Luogo
6855 Stabio
6855 Stabio
Incarico
Progetto esecutivo in corso
Progetto esecutivo in corso
Capo progetto
M + R
M + R
Ing. civile
Studio di ingegneria Roberto Mondada - Balerna
Studio di ingegneria Roberto Mondada - Balerna
Specialista energia
IFEC Ingegneria SA - Rivera
IFEC Ingegneria SA - Rivera
Specialista impianto di ventilazione HVAC
Studio d'ingegneria Visani Rusconi Talleri SA - Lugano
Studio d'ingegneria Visani Rusconi Talleri SA - Lugano
Specialista impianto termosanitario
Studio d'ingegneria Visani Rusconi Talleri SA - Lugano
Studio d'ingegneria Visani Rusconi Talleri SA - Lugano
Specialista impianto elettrico
Studio d'ingegneria Piona Engineering SA - Manno
Studio d'ingegneria Piona Engineering SA - Manno
Specialista acustica
IFEC Ingegneria SA - Rivera
IFEC Ingegneria SA - Rivera
Anno
2022-2020
2022-2020
VSIA 416
6530 m³
6530 m³
Cod. Rif.
144 - BSL
144 - BSL