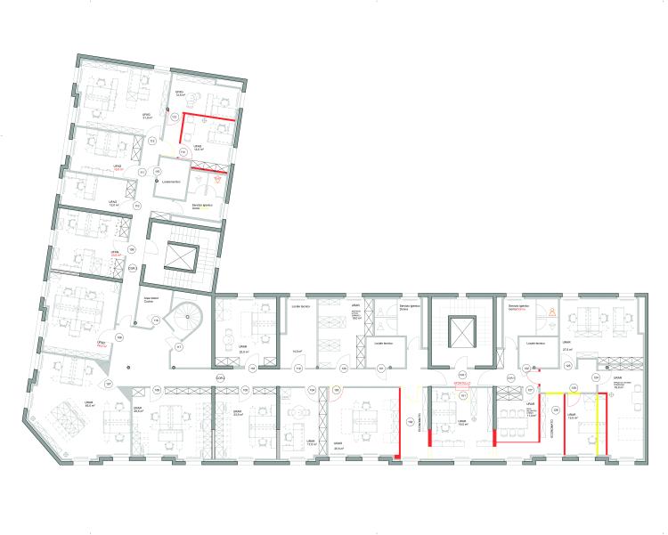
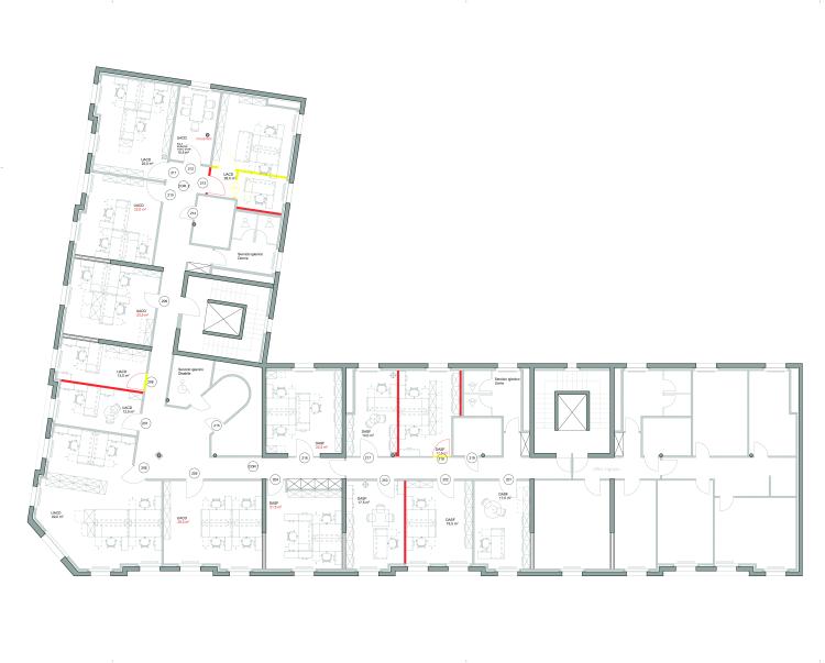
Pubblico/Riorganizzazione spazi interni Stabile Cometas
La sezione della logistica del Dipartimento delle finanze e dell’economia è committente per la progettazione degli spazi interni dello stabile “Cometas” a Bellinzona. Il mandato risponde all’esigenza di ottimizzare il progetto attuale e riconfigurare le postazioni di lavoro e gli arredi, così come indicato dal committente. Il fruitore dello stabile sarà la Divisione dell’azione sociale e delle famiglie.
Committente
Repubblica e Cantone Ticino
Repubblica e Cantone Ticino
Oggetto
Riorganizzazione spazi interni Stabile Cometas
Riorganizzazione spazi interni Stabile Cometas
Luogo
6500 Bellinzona
6500 Bellinzona
Incarico
Progettazione
Progettazione
Capo progetto
M + R
M + R
Anno
2025-2024
2025-2024
Cod. Rif.
181 - DASF
181 - DASF