Salta al contenuto principale
 


Privato/Nuovo Bocciodromo con Locanda - Progetto di riuso



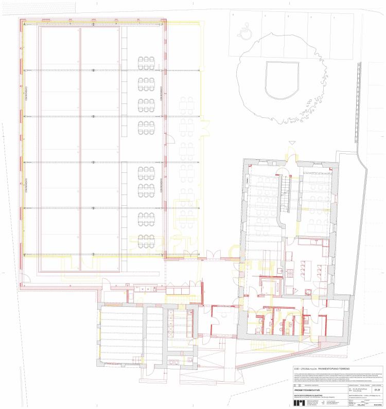
Il fondo in questione è stato edificato con tre strutture distinte, due risalenti agli anni ‘70|'90: una villetta singola a due piani e un padiglione prefabbricato nato come bocciodromo e riconvertito in ristorante dopo i suoi primi vent’anni di vita. La terza struttura risale agli inizi del Novecento e la sua ultima destinazione è stata quella di ristorante al piano terra e residenza al primo piano. Il progetto ha lo scopo di riqualificare l'intero fondo nell'ottica di riportare la proprietà al suo stato originario, senza operare demolizioni, ovvero un bocciodromo a tre viali che permetteranno lo svolgimento di gare a livello regionale e internazionale, con locanda annessa. In ottica di riuso lo Studio Martinelli e Rossi condivide con il committente l’obiettivo di riutilizzare il più possibile la sostanza costruita esistente, ma non solo. Dove e quando possibile l’ambizione è quella di attingere a materiali recuperati in cantieri dove si demolisce, ricollocandoli con efficacia enfatizzandone l’espressione per comunicarne il senso profondamente ecologico.


Committente
Stabio Life SA

Oggetto
Nuovo Bocciodromo con Locanda - Progetto di riuso

Luogo
6572 Quartino

Incarico
Progetto e direzione lavori

Capo progetto
M + R

Ing. civile
Zanini Gozzi Sagl

Specialista energia
Ifec Ingegneria SA

Specialista impianto di ventilazione HVAC
Ifec Ingegneria SA

Specialista impianto termosanitario
Ifec Ingegneria SA

Specialista impianto elettrico
Ifec Ingegneria SA

Anno
2025-2024

VSIA 416
3000 m³

Cod. Rif.
165 - LBQ