Salta al contenuto principale
 


Privato/Nuova casa plurifamiliare

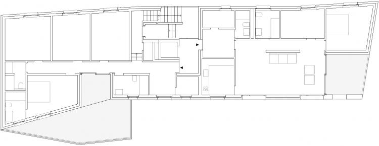
Cinque appartamenti distinti ma pensati come se si trattasse di una grande casa fatta di stanze tutte diverse, in Capriasca, una zona residenziale con una bella vista a ovest e su un terreno in leggero declivio. Due appartamenti in duplex e gli altri su un piano, ognuno con una propria identità, definita da rapporti precisi con le viste e gli spazi esterni, giardini, terrazze o logge che siano. L’architettura fa esplicitamente riferimento a una grande villa progettata da Alvaro Siza, la casa Vieira de Castro. E fa riferimento a quel mondo Mediterraneo che in parte ci appartiene e che a maggior ragione bene si addice a questa casa plurifamiliare fatta di terrazze logge e giardini pensili proiettati sul paesaggio.


Committente
Privato

Oggetto
Nuova casa plurifamiliare

Luogo
6947 Vaglio

Incarico
Progetto e direzione architettonica

Capo progetto
M + R

Ing. civile
Ing. Alfio Casanova - Lugano

Specialista energia
CS Progetti - Bedano

Specialista impianto di ventilazione HVAC
CS Progetti - Bedano

Specialista impianto termosanitario
CS Progetti - Bedano

Specialista impianto elettrico
Studio Fallet - Castione

Specialista acustica
IFEC Consulenze SA - Rivera

Anno
2011-2007

VSIA 416
2330 m³

Cod. Rif.
38 - IVA