Industria/Micro Sphere SA - Nuovo stabilimento farmaceutico
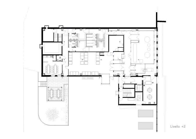
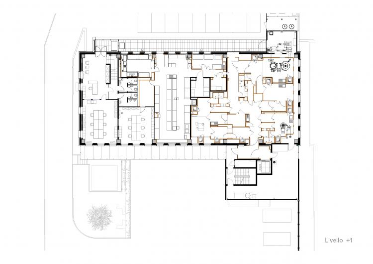
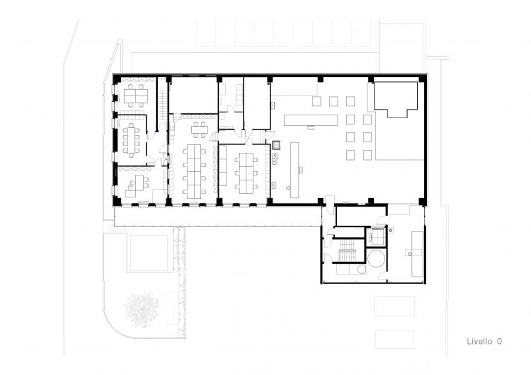
Si tratta di un edificio realizzato a partire da uno stabile prefabbricato degli anni '80, che oggi costituisce un complesso costruttivo chiuso in se stesso affacciato lungo il fiume Tresa. Il nuovo stabilimento é caratterizzato da una tripartizione planimetrica determinata dalla particolarità dei processi di produzione. Alcune impostazioni del nuovo complesso sono suggerite dai progetti palladiani per le ville venete, dove il corpo padronale viene contornato dai volumi delle barchesse, dei portici e delle colombare.
Committente
Micro Sphere SA
Micro Sphere SA
Oggetto
Riconversione e ampliamento per stabilimento farmaceutico
Riconversione e ampliamento per stabilimento farmaceutico
Luogo
6998 Monteggio
6998 Monteggio
Incarico
Progetto e direzione lavori
Progetto e direzione lavori
Capo progetto
M + R
M + R
Ing. civile
Studio d'ingegneria Lucini Cesare Sagl - Paradiso
Studio d'ingegneria Lucini Cesare Sagl - Paradiso
Specialista energia
UCE Sagl - Paradiso
UCE Sagl - Paradiso
Specialista impianto di ventilazione HVAC
Cattaneo Impianti SA - Chiasso
Cattaneo Impianti SA - Chiasso
Specialista impianto termosanitario
Cattaneo Impianti SA - Chiasso
Cattaneo Impianti SA - Chiasso
Specialista impianto elettrico
P&P studio elettrotecnico Sagl - Chiasso
P&P studio elettrotecnico Sagl - Chiasso
Anno
2010-2008
2010-2008
VSIA 416
10000 m³
10000 m³
Cod. Rif.
46 - MSPC
46 - MSPC