Salta al contenuto principale
 


Industria/BSI SA - Nuovo centro di calcolo

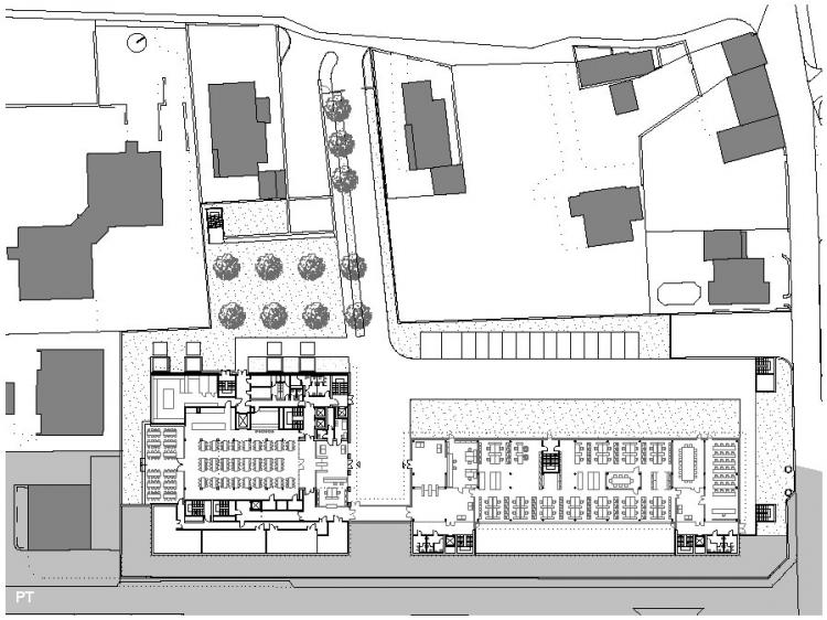
La nuova edificazione si articola in due volumi. ciascuno di cinque piani fuori terra, e appoggiati su un basamento interrato comune. Il blocco principale si sviluppa intorno ad una corte coperta interna. Il secondo blocco adotta una tipologia lineare. La conformazione del terreno ed una logica sequenziale del nuovo complesso amministrativo hanno diretto la composizione del progetto stesso. L'idea che ha dettato la morfologia del nuovo insediamento é in stretta relazione con la volontà di costruire un nuovo ingresso principale rivolto a valle, verso l'arteria di circolazione e la nuova porta cittadina di Cornaredo. Pertanto a contatto fra i due nuovi volumi fuori terra si disegna una sorta di corte aperta rivolta verso il prolungamento del terreno che sfocia su via Ceresio, dove si prevedono gli accessi principali.


Committente
BSI SA

Oggetto
Nuovo edificio amministrativo e nuovo centro di calcolo

Luogo
6900 Lugano Pregassona

Incarico
Progetto e direzione lavori

Capo progetto
M + R

Ing. civile
Balmelli & Partner Ingegneria SA - Lugano

Specialista impianto di ventilazione HVAC
Ing. Franco Semini - Lugano

Specialista impianto termosanitario
Ing. Franco Semini - Lugano

Specialista impianto elettrico
Piona Elproject SA - Lugano

Anno
2013

VSIA 416
150 m³

Cod. Rif.
55 - BSI
B Source nuovo stabilimento - vetrate